【產品簡介】:一款傳統的、應用廣泛的振動篩分機,多用于中細粒篩分。
【處理能力】:0.5~700t/h
【應用范圍】:鑫海振動篩分機適用于礦山、煤炭、冶金、建材、化工等部門對中細粒度進行分級。
【產品改進】:該篩分設備采用耐磨橡膠制作彈性限位件;有座式和吊式兩種形式的振動篩。
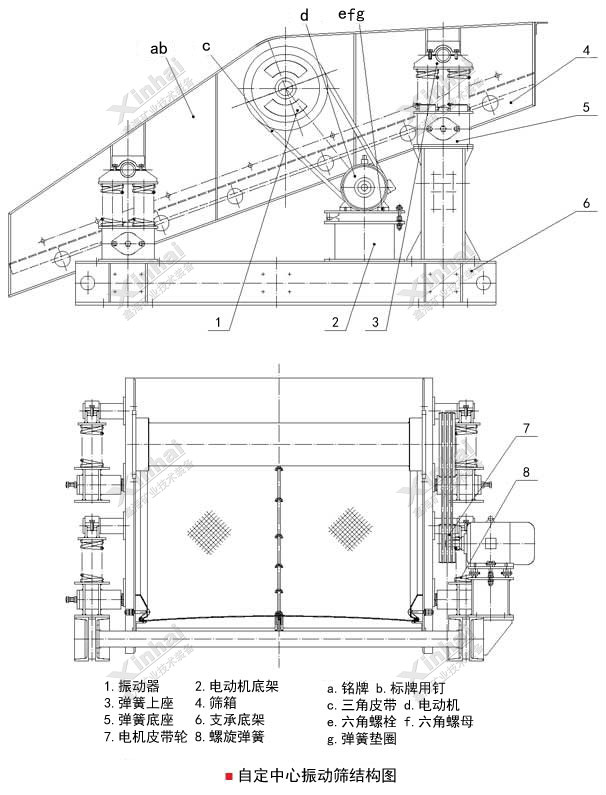
自定中心振動篩原理是利用電機帶動皮帶輪的主軸承時,所產生的離心慣性力加在篩箱振動系統的內力、帶動篩箱系統的重心做圓運動。偏重輪上偏心重塊的質量,應該保證它們所產生的離心慣性力能夠平衡篩箱旋轉時所產生的離心慣性力。使皮帶輪中心在空間不發生位移的條件是篩箱旋轉產生的離心慣性與偏心重塊產生的離心慣性力大小相等,方向相反,此時達到動力平衡。 從而實現皮帶輪"自定中心",使得大小兩皮帶輪的中心距保持不變,消除了皮帶時松時緊的現象。
| 型號 | 規格 | 上限給料粒度 (mm) | 處理能力 (t/h) | 電機型號 | 電機功率 (kW) | 重量 (kg) | 備注 |
|---|---|---|---|---|---|---|---|
| SZZ0918 | 900×1800 | 40 | 20~25 | Y100L1-4 | 2.2 | 420 | 吊式 |
| SZZ0918 | 900×1800 | 40 | 10~30 | Y100L1-4 | 2.2 | 553 | 座式 |
| 2SZZ0918 | 900×1800 | 40 | 20~40 | Y100L1-4 | 2.2 | 570 | 座式 |
| SZZ1225 | 1250X2500 | 100 | 100 | Y132S-4 | 5.5 | 1017 | 吊式 |
| SZZ1225 | 1250X2500 | 100 | 100 | Y132S-4 | 5.5 | 1466 | 座式 |
| 2SZZ1225 | 1250X2500 | 100 | 100~150 | Y132S-4 | 5.5 | 1320 | 吊式 |
| 2SZZ1225 | 1250X2500 | 100 | 100~150 | Y132S-4 | 5.5 | 1870 | 座式 |
| SZZ1530 | 1500×3000 | 100 | 90~200 | Y132M-4 | 7.5 | 1850 | 吊式 |
| SZZ1530 | 1500×3000 | 100 | 90~200 | Y132M-4 | 7.5 | 2665 | 座式 |
| 2SZZ1530 | 1500×3000 | 100 | 90~200 | Y132M-4 | 7.5 | 2963 | 吊式 |
| SZZ1540 | 1500×4000 | 100 | 90~200 | Y160L-4 | 15 | 2865 | 座式 |
| 2SZZ1540 | 1500×4000 | 400 | 90~200 | Y160L-4 | 15 | 3412 | 座式 |
| SZZ1836 | 1800×3600 | 150 | 100~300 | Y160M-4 | 11 | 4500 | 吊式 |
| 2SZZ1836 | 1800×3600 | 150 | 100~300 | Y180M-4 | 18.5 | 5616 | 座式 |
云南某選礦廠,物料含水較大,設備損耗嚴重、生產無法進行而增加洗礦設施,進行細碎前的洗礦脫泥。鑫海篩分機廠家用的自定義中心振動篩因偏心軸會產生較大的離心力,同時可襯濕式耐磨橡膠增加設備使用壽命,另外增加兩臺用于脫泥。礦石經過振動篩兩段的洗礦脫泥,篩分效率提高,大大保證了選前工作的正常運行,同時也降低了生產成本。
您可以在下面表格填寫您的需求信息,我們的技術與銷售人員會盡快與您取得聯系。為保證能及時處理您的信息,請務必準確填寫您的聯系電話!